PROJEKTSTATUS

BAUBEGINN 2021
FERTIGSTELLUNG 2024

AUFTRAGGEBER

BEWOCON
BERLINER WOHNBAU CONSULT GMBH
LEIPZIGER PLATZ 10
10117 BERLIN

PLANUNGLEISTUNG

PLANUNG LP 1-4

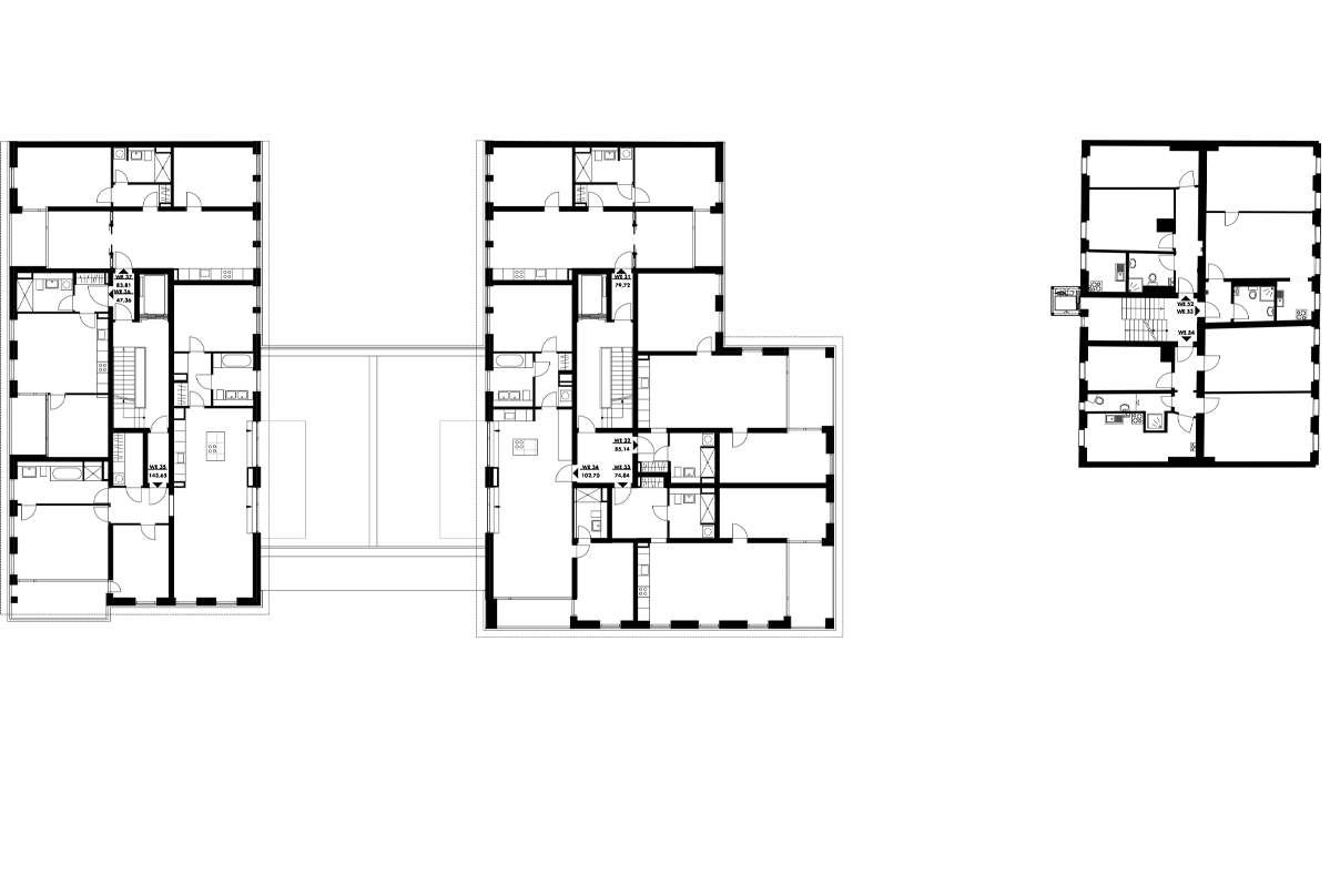
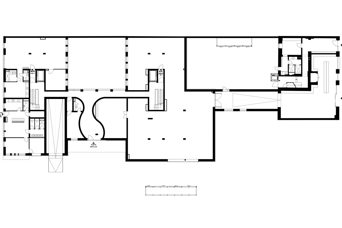
PROJEKTDATEN

1 HAUS
41 WOHNUNGEN
1 GEWERBEEINHEIT, 1 KITA
4.563,03 M2 WOHN-, GEWERBE- UND TAGESEINRICHTUNGSFLÄCHEN

PROJEKTADRESSE

HERMANNSTRASSE 49
12049 BERLIN NEUKÖLLN