Das Haus in der Greifswalder Straße 224 wurde 1902 vom Architekten Agathon Reimann für den Unternehmer Max Schulz geplant, der die Gewerbeflächen oder Teile der Gewerbeflächen zur Destillation von Spirituosen errichten ließ und eine Weingroßhandlung im vorderen Gebäudeteil betrieben hat.
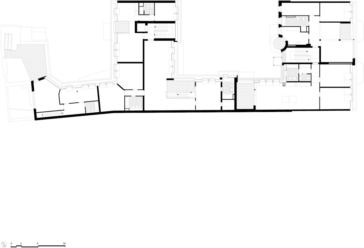
Städtebaulich unterteilt sich das Haus mit 2 Gewerbehöfen in ein Vorderhaus mit zwei Quergebäuden, die jeweils über die Seitenflügel verbunden sind. Die Höfe öffnen sich zum Nachbarn in der Greifswalder Straße 223.
Das 2. Quergebäude schließt das Grundstück als Grenzbebauung ab, sodass sich dessen Innenräume einseitig zum zweiten Hof hin orientieren.
Das Gebäude in der Greifswalder Straße 224 wird von Grund auf modernisiert, Balkone und Aufzüge werden neu errichtet. Die Aufteilung der Wohnungen im Vorderhaus bleibt weitgehend im Bestand, die gewerblich genutzten Flächen in den beiden Quergebäuden mit Seitenflügeln werden als Wohnlofts neu aufgeteilt und das Dach neu errichtet.
Insgesamt entstehen 33 Wohnungen und 2 Ladeneinheiten im Erdgeschoss zur Straße hin.
Unsere Planung für die Straßenfassade übernimmt Gliederungselemente der historischen Fassade, ohne eine Rekonstruktion des Bildes der detailreichen Fassadenplanung von 1902 zu suchen.
Ziel ist es, die Grundzüge der historischen Proportionen erneut lesbar zu entwickeln.
Das neu geplante Dach setzt sich als eigenständiges Element oberhalb des Dachkastens ab.
Es greift die geneigte Form des Berliner Daches auf und platziert mittig eine Box, die die Form eines klassischen Frontspieß interpretiert und mit großzügig verglasten Flächen wie eine große Laterne den Abschluss des Hauses markiert.
Die beiden Gewerbehöfe belässt die Fassaden im Bestand; die weiß glasierten Berliner Pfeifenköpfe im ersten Hof und die gelbbraunen Klinker im zweiten Hof werden überarbeitet und teilweise ergänzt.

PROJEKTSTATUS

FERTIG GESTELLT 2016

AUFTRAGGEBER

IMMOWERT IMMOBILIENGRUPPE
LUGECK 1-2
1010 WIEN

PLANUNGLEISTUNG

PLANUNG LP 1-4

PROJEKTDATEN

GRÜNDERZEITGEBÄUDES MIT ZWEI GEWERBEHÖFEN
30 WOHNUNGEN
5 GEWERBEEINHEITEN
3.615 M2 WOHNFLÄCHE

PROJEKTADRESSE

GREIFSWALDER STRASSE 224
10405 BERLIN