Die alte „Fabrik“ war Teil eins ersten Bauantrags aus dem Mai 1888; konkret wurden ein Vorderhaus mit zwei Quergebäuden im Hof, jeweils über Seitenflügel verbunden und mit drei baugleichen gemeinsamen Höfen zum westlich gelegenen Nachbarn in der Reichenberger 155 geplant und im Anschluss errichtet.
Die Struktur dieser Bebauung ist in der Reichenberger Straße 155 noch vollständig erhalten –- in der Reichenberger 154 wurden Vorderhaus und erste Hofbebauung während des 2. Weltkrieges beschädigt und im Anschluss abgebrochen.
Der alte „Speicher“ liegt in den historischen Dokumenten als zweiter Bauantrag aus August 1888 vor; hier wurden der Speicher samt Pferdeställen (im Bereich der heutigen Garagen) und einem Kesselhaus für drei Aufzüge (1888!) geplant und im Anschluss errichtet.
In den 1990er Jahren wurde anstelle des alten Kesselhauses eine dreigeschossige Erweiterung zwischen Fabrik und Speicher platziert.
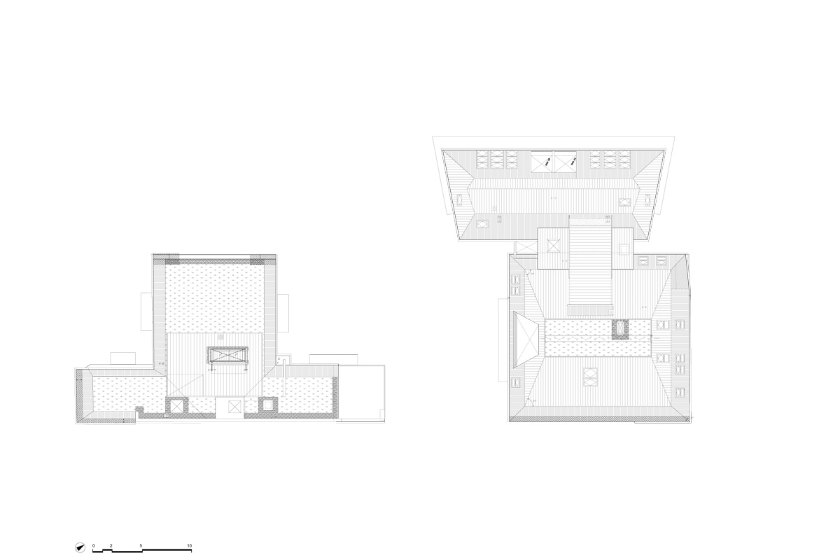
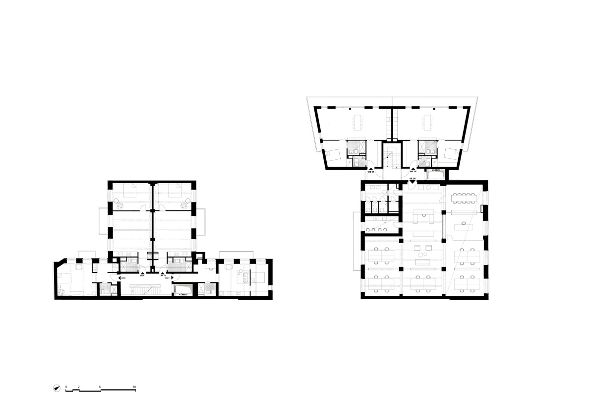
Unser städtebauliches Konzept fokussiert sich einerseits auf eine verbesserte Erschließung des Hofgrundstücks bis zur Straße hin. Ein weiteres Anliegen war andererseits die Erarbeitung erkennbarer Bilder für die historischen Gebäude Fabrik und Speicher, die von uns um das neue Atelier ergänzt wurden.
Ziel der von uns vorgesehenen Eingriffe in die bestehende Struktur ist die Entwicklung einer prägnante Adresse. Nach Abbruch der Lager und Garagen sowie dem dreigeschossigen Zwischenbau entsteht im Hof mit den drei Häusern Fabrik, Speicher und neuem Atelier ein Ensemble mit städtischem Garten, der die Höfe zu den Nachbarn hin großzügig öffnet.
Die für Kreuzberg typische Nutzungsmischung verbindet die Strukturen der historischen Lofträume mit ihren hellen und offenen Grundrissen mit modernen, teils zweigeschossigen Räumen und Panoramafenstern im Atelier.
Mit seinen prägnanten, teils gezackten Zinkdächern und Materialien wie geschlämmtem Mauerwerk und sichtbaren Stahlträgern im Bereich der historischen Bausubstanz sowie Cortenstahl und sichtbaren Betonflächen im Garten und Atelierhaus soll ein atmosphärisch dichtes Bild des Hofgartenensembles entstehen, der einen revitalisierten Ort für kreative Wohn- und Arbeitsräume schafft.

PROJEKTSTATUS

BAUBEGINN 2020
FERTIGSTELLUNG 2023

AUFTRAGGEBER

NATULIS GROUP AG
HACKESCHES QUARTIER, LITFASZ-PLATZ 2
101718 BERLIN

PLANUNGLEISTUNG

PLANUNG LP 1-5

PROJEKTDATEN

3 HÄUSER
23 WOHNUNGEN
7 GEWERBEEINHEITEN
3.407,89 M2 WOH- UND GEWERBEFLÄCHE

PROJEKTADRESSE

REICHENBERGER STRASSE 154
10999 BERLIN KREUZBERG