PROJEKTSTATUS
BAUBEGINN 2019
FERTIGSTELLUNG 2020
AUFTRAGGEBER
PRIVAT
PLANUNGLEISTUNG
PLANUNG LP 1-3
PROJEKTDATEN
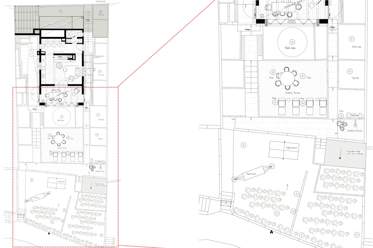
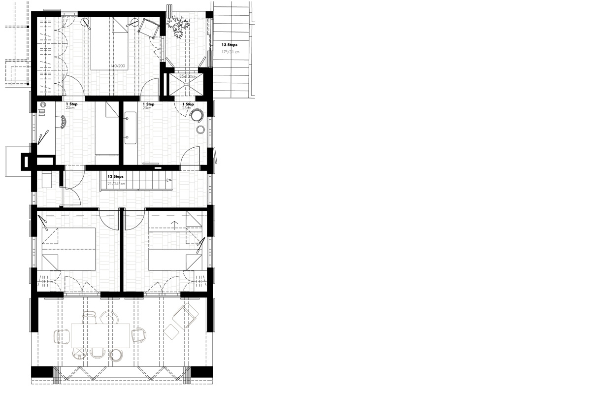
HAUS AM MEER
115 M2 WOHNFLÄCHE
PROJEKTADRESSE
HAUS AM MEER
HVAR
KROATIEN
BAUBEGINN 2019
FERTIGSTELLUNG 2020
PRIVAT
PLANUNG LP 1-3
HAUS AM MEER
115 M2 WOHNFLÄCHE
HAUS AM MEER
HVAR
KROATIEN