Idee des Entwurfs für die Choriner Straße 84 in den damals neu geschaffenen „Choriner Höfen“ in Berlin-Mitte war es, ein großstädtisches Wohnhaus im Zentrum der Stadt zu entwickeln, das sich in seiner Formensprache mit einem differenzierten Volumen sowie klassischen Proportionen in die unmittelbare Nachbarschaft einfügt.
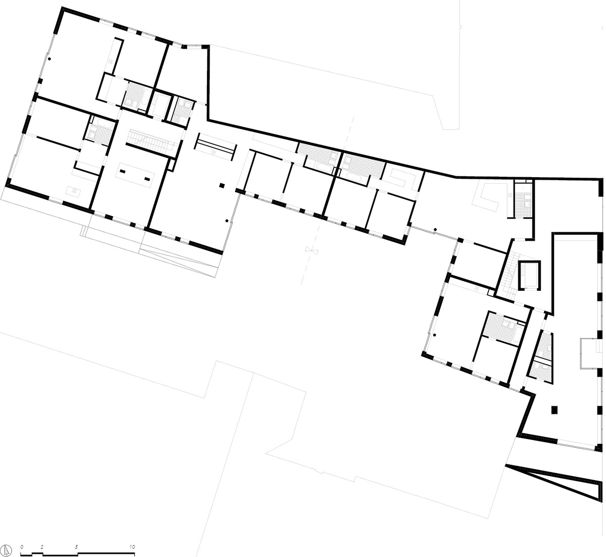
Den städtebaulichen Prämissen der klassischen Blockrandbebauung folgend schließt das Vorderhaus straßenseitig die Baulücke, während sich über den Seitenflügel ein fast frei stehendes, dreiseitig orientiertes Kopfgebäude im Hof erstreckt.
Die Straßenfassade ist grafisch gegliedert und entwickelt sich aus den Traufkanten der Nachbargebäude; die verschiedenen Höhen der Nachbarn werden durch einen Versprung innerhalb der Staffelgeschosse vermittelt. Die zweigeschossige Lobby markiert den großzügigen Eingang in das Stadthaus und bildet ein Fenster zur Stadt. Die Ziegelfassade zieht sich hier aus dem Stadtraum in das Gebäude hinein.
Die Fassadenlinie im Hof entwickelt drei sich überlagernde Höfe. Im Gegensatz zur glatten Straßenfassade gibt es hier Balkone und Loggien, die die dynamische Bewegung der Fassade verstärken und durch ihre Glasausführung den Blick in den Hof öffnen.
Das Wohnhaus bietet eine Vielzahl von Wohnungsformen unterschiedlicher Größe für unterschiedliche Bedürfnisse. Wohnungen beispielsweise, die Blicke auf Straße und Hof ermöglichen; Wohnungen, die sich ausschließlich auf den ruhigen Hof ausrichten oder Penthauswohnungen mit großen Terrassen. Allen Wohnungen gemein ist die Gliederung in großzügige Bereiche als gemeinschaftliches Zentrum sowie gleichwertige kleinere Räume als Privatflächen. Alle Fenster sind raumhoch. Die schlanken Fenster vor den Privaträumen und die großen Schiebefenster vor den Terrassen, Loggien oder Balkonen sorgen für eine enge Verknüpfung mit den privaten Hofgärten und eine gute Belichtung.

Projektstatus

Fertig gestellt 2012

Auftraggeber

Diamona & Harnisch Development GmbH
Leipziger Platz 14
10117 Berlin

Planungsleistung

Planung LP 1-5

Projektdaten

2 Häuser
43 Wohnungen
4.470 m² Wohnfläche

Projektadresse

Choriner Strasse 84
10119 Berlin

Fotos

Matthias Könsgen Fotograf