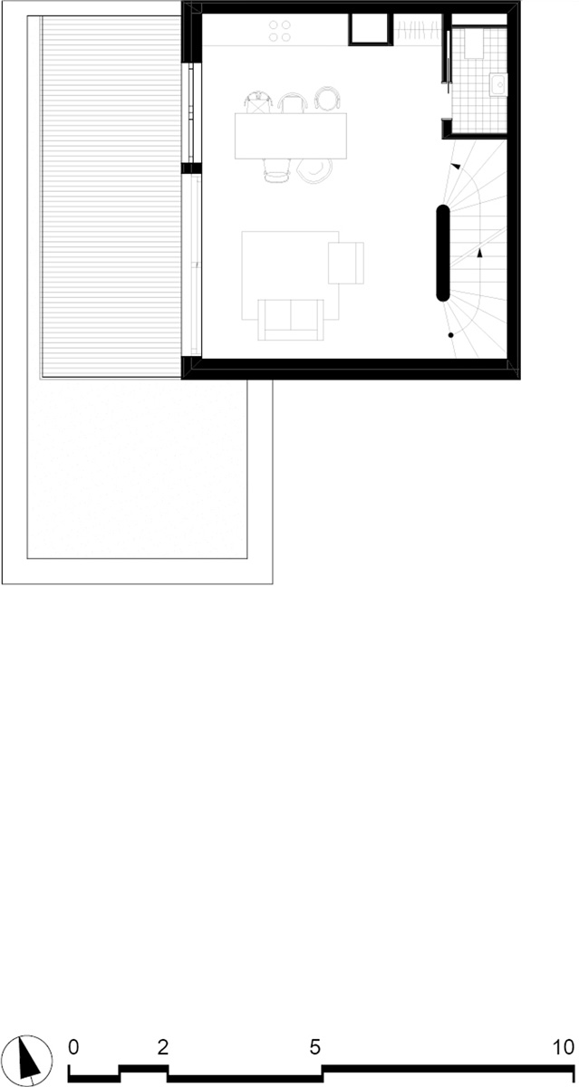
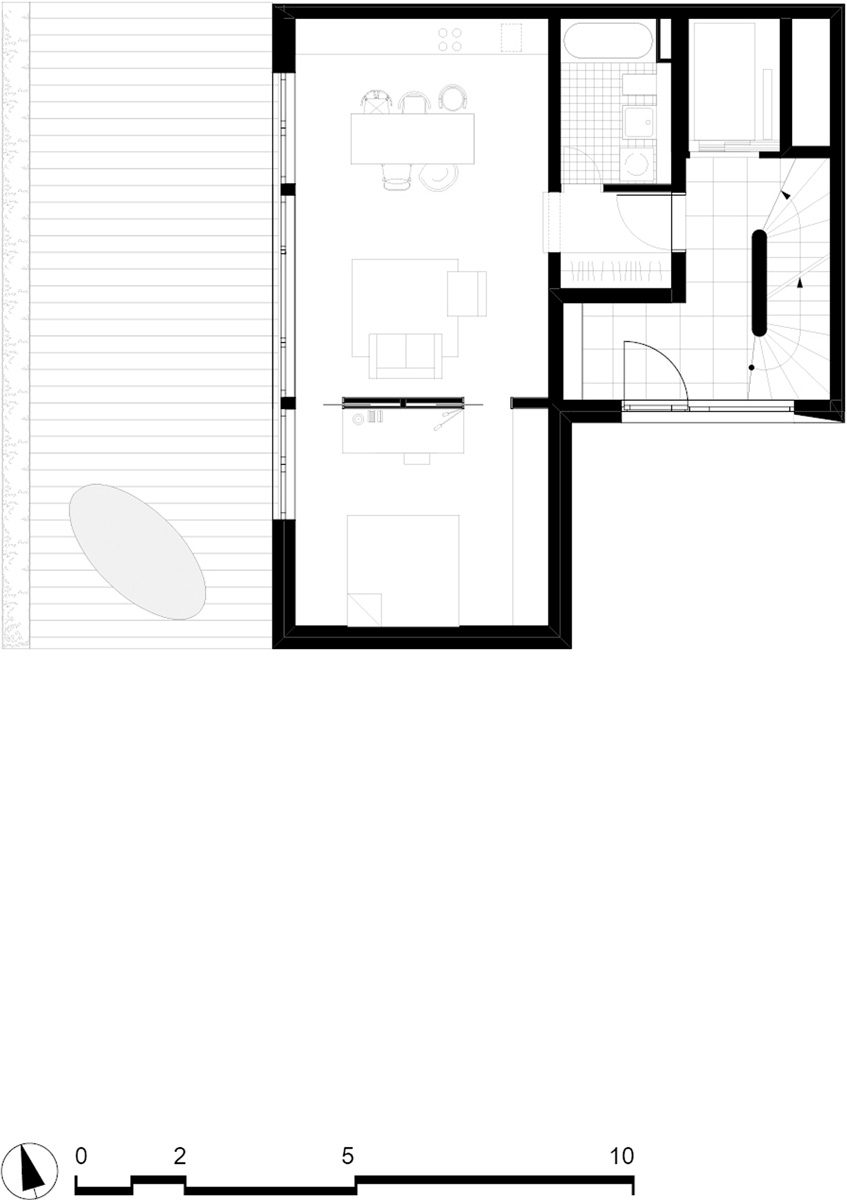
Das Haus in der Auguststraße 47a in Berlin-Mitte ist eine Hofbebauung; die Nachbarparzelle ist als Feuerwehrzufahrt zur Straße hin offen. Es wurde als Wohnhaus mit sieben Geschossen für fünf Wohnungen geplant.
Die den Blockrand schließenden Häuser stammen aus unterschiedlichen Zeiten, in unmittelbarer Nähe überwiegen Plattenbauten, es finden sich aber auch zahlreiche Gebäude aus dem 18. und dem 19. Jahrhundert, der Blütezeit des damaligen „Spandauer Viertels“, das heute als Ensemble unter Denkmalschutz steht. Städtebaulich ist der Block als raumbildende Form gut ablesbar und rahmt die amorph in Höhe und Form vorhandene Hofbebauung, die gleichwohl strukturell die typischen Gliederungselemente von Seitenflügeln, Quergebäuden und Remisen erkennen lässt. Teile der vorhandenen Baukörper im Hof ragen turmartig in die Höhe mit Firstpunkten von bis zu 23m.
Städtebaulich haben wir zwei ineinander verschränkte Baukörper platziert: einen schlanken, hohen, turmartigen und einen niedrigen, flachen, remisenartigen Körper. Das Spannungspaar formt auf der einen Seite einen intimen Gartenraum mit dem Nachbarn zur Straße und öffnet sich auf der anderen zur Auguststraße hin und in den Hof hinein.
Gliederung und Gestaltung der Fassade betonen die Zusammengehörigkeit von „Turm“ und „Remise“: Große Loggien und Fenster mit niedrigen Brüstungen öffnen die Regelgeschosse nach Süden; die oberen drei Geschosse der Triplexwohnung haben ein gemeinsames „Turmfenster“ im Bereich der zweigeschossigen Galerieebene. Die mit weißem glasiertem Klinker verkleidete Fassade ruft vertraute Assoziationen ab – Berlins historische Gewerbehöfe – und übersetzt diese in einen neuen Kontext. Im Zusammenspiel mit den modernen, großzügigen Fensterformaten und den flaschengrünen Fensterbänken entsteht so ein Haus im Hof, das sich sowohl gut in die Hofbebauung einfügt als auch eine von der Straße gut sichtbare städtische Adresse umsetzt.

Projektstatus

Fertig gestellt 2014

Auftraggeber

Kurth Immobilien GmbH
Wöhlerstrasse 7
37073 Göttingen

Planungsleistung

Planung LP 1-7

Projektdaten

1 Haus
5 Wohnungen
358 m² Wohnfläche

Projektadresse

Auguststrasse 47a
10119 Berlin Mitte