Unsere Idee für die Waisenstraße ist für die Eckparzelle die Umsetzung einer selbstbewussten Stadtecke nach Südwesten, die den Übergang zum historischen Wohn- und Geschäftshaus spiegelbildlich zum Neubau an der Straßenecke zur Bahnhofsstraße formuliert
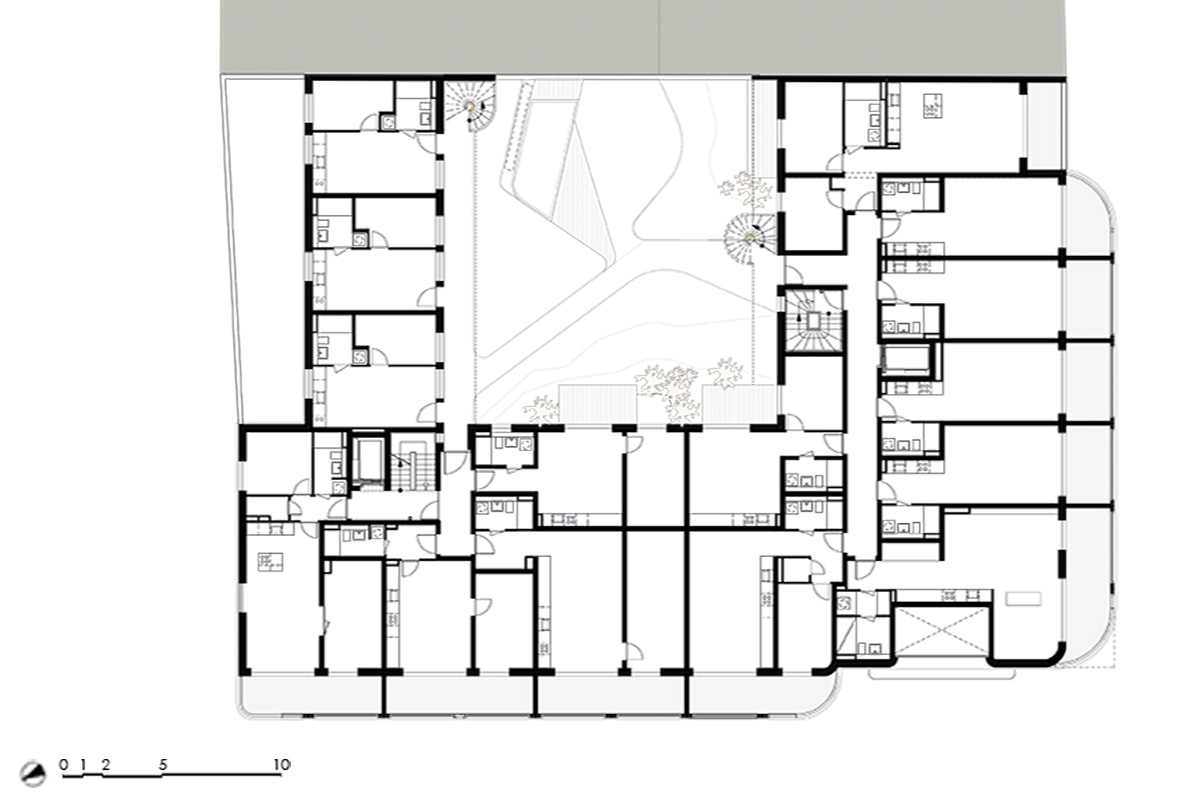
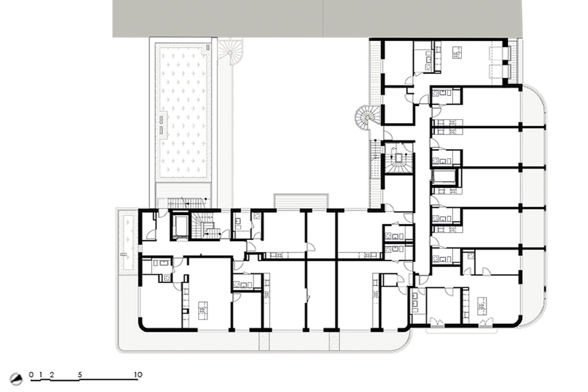
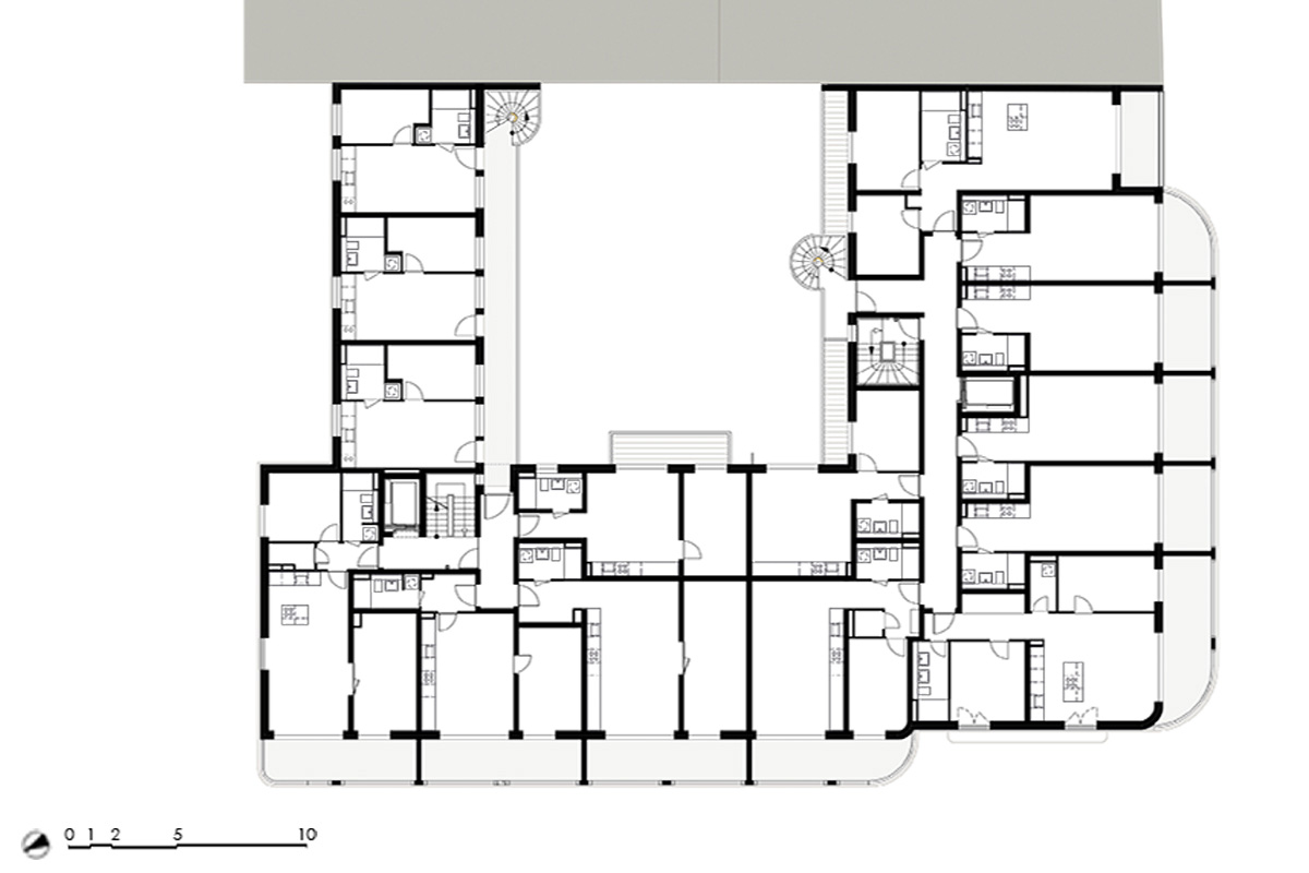
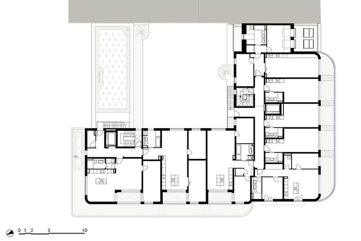
Für die Süd- und Westseite haben wir allen Wohnungen mit über 2 Metern Tiefe sehr großzügige Außenräume zugeordnet. Diese geräumigen, „vorgestellten“ Freisitze bilden die charakteristische Struktur zu den einzelnen „Logen“, die Pate stehen für die Benennung unseres Hauses als Logenhaus.
Die „Logen“ sind der klassischen Oper entlehnt und stehen sinnbildlich für „einen Raum zum Schauen“. Die Loge in der Oper als das zur Bühne hin geöffnetes Zimmer soll in unserem Entwurf dazu dienen, den Blick zur Stadt hin zu richten – die Stadt wird so gewissermaßen als Bühne wahrgenommen und kann je nach Stadtraum den Blick in unterschiedlich gestaltete Stadträume fokussieren.
Der Schwerpunkt liegt in der Wechselwirkung zwischen Wohnung als privatem Rückzugsraum und der Loge Betrachtungsraum mit Blick und Stadtraum der Gemeinschaft und umgekehrt.
Die Logen nach Westen beleuchten unserer Meinung nach gut die städtebauliche Entwicklung der Nachkriegszeit hin zur eng geknüpften Stadtlandschaft, während die südlichen Logen eher als Schauraum in künftige Möglichkeiten städtebaulicher Entwicklung der Stadt bieten.
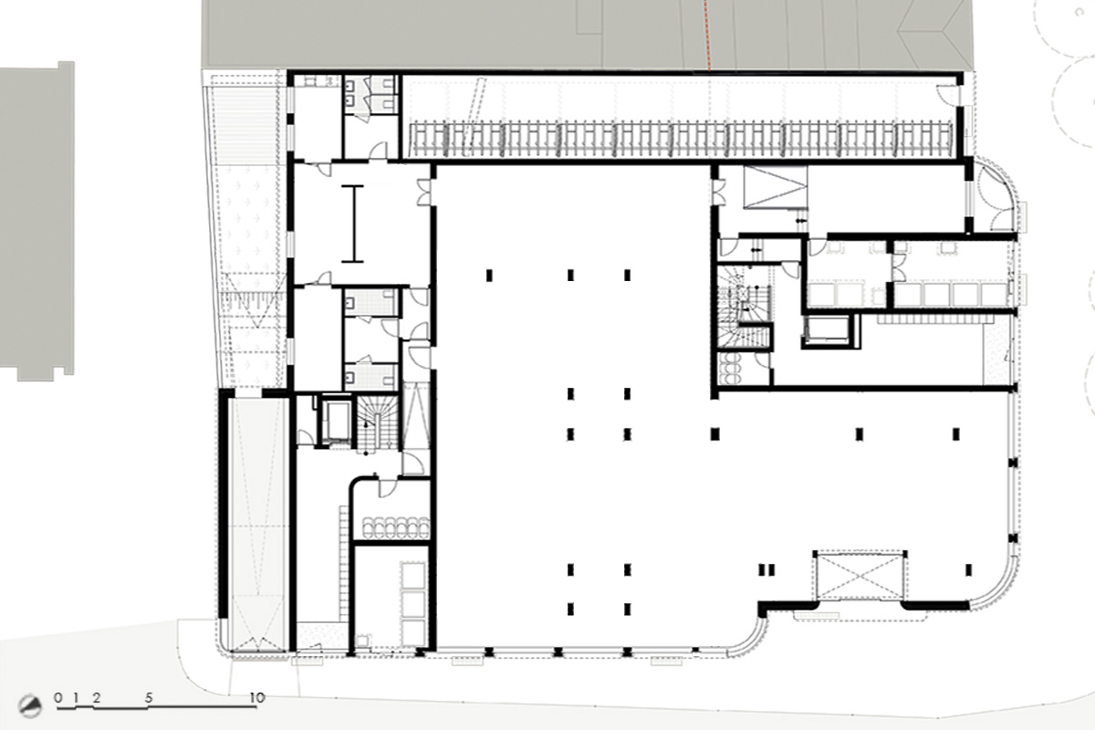
Die Struktur der Logen wird gegliedert durch schlanke, abgestufte Geschossplatten und rautenförmig geformte Stützen als Fertigteile in Beton. Die Ecken dieser vorgesetzten Logenräume werden jeweils mit geschwungenen Übergängen zum Hauptbaukörper ausgebildet.
Die Deckenunterseiten aller Logen sind himmelblau gestrichen, alle Stabgeländer interpretieren das Rautenmotiv der Betonstützen in kleinerem Maßstab und sind bronzefarben gepulvert.
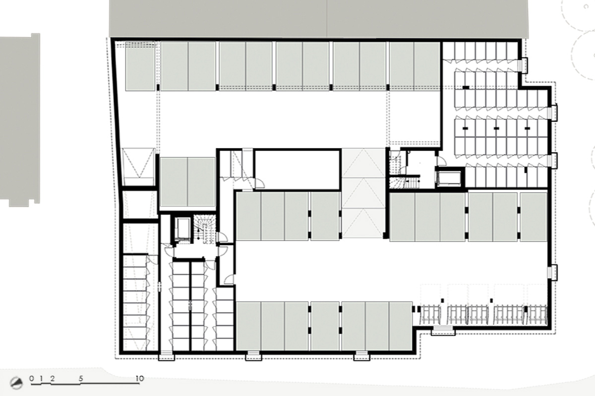
Der Erdgeschosssockel ist mit klassisch hohen Proportionen ausgebildet und erstreckt sich als Einzelhandelsfläche für Lebensmittel über nahezu das gesamte Erdgeschoss – funktional gewissermaßen als Nachfolger der ehemaligen Kaufhalle. Die Schaufenster sind aus Aluminium und bronzefarbenen bepulvert.

PROJEKTSTATUS

BAUBEGINN 2025
FERTIGSTELLUNG 2028

AUFTRAGGEBER

FOURREAL GMBH
BAUERNMARKT 10/14
1010 WIEN

PLANUNGLEISTUNG

PLANUNG LP 1-4

PROJEKTDATEN

1 HAUS
78 WOHNUNGEN
1 GEWERBEEINHEIT
4.885,98 M2 WOHN- UND GEWERBEFLÄCHE

PROJEKTADRESSE

WAISENSTRASSE 11
0911 CHEMNITZ