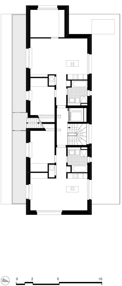
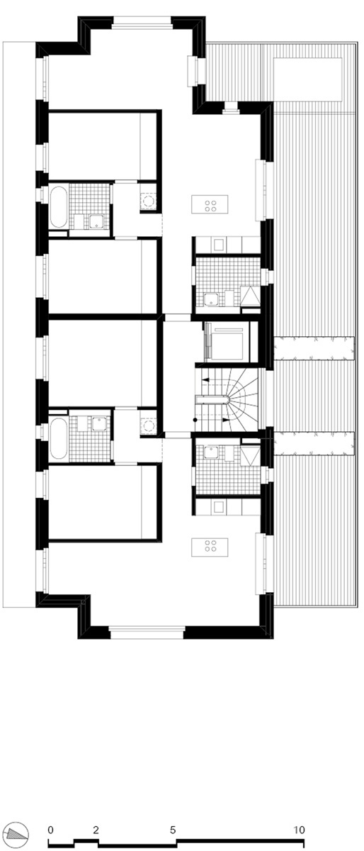
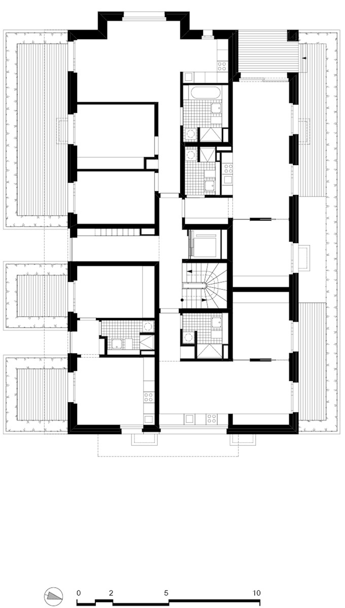
Das Haus in der Wöhlerstraße 7 ist als Wohnhaus mit vier Geschossen und Untergeschoss für zwölf Wohnungen geplant und fügt sich in die bereits vorhandene Bebauung der Nachbarschaft.
Unser Wohnhaus orientiert sich städtebaulich an der offenen Bauweise der benachbarten Bebauung.
Die städtebauliche Struktur und auch die Atmosphäre der historischen Nachbarn sind Vorbild für den Neubau in der Wöhler Straße, ohne sich der historischen Stilmittel als Abbild zu bedienen.
Das Haus in der Wöhler Straße platziert sich als „Skulptur im Garten“ und ist nach Vorbild der benachbarten Ziegelbauten monolithisch aus im Wasserstrich hergestellten hellen Backsteinen geplant.
Der auskragende Erker interpretiert die benachbarten Mittelrisalite, die gestaffelten Vor- und Rücksprünge nehmen Bezug zu den mitunter ebenfalls gestaffelten Bauten aus dem 19. Jahrhundert.
Die Ausbildung der Fassadenstruktur entwickelt sich aus diesen städtebaulichen Gedanken; so gibt es große Öffnungen zur Straße, die sich an den öffentlichen Raum adressieren und großzügige, bodentiefe Fenster, die die Innenräume mit der Gartenlandschaft verbinden.
Im Zusammenspiel mit den modernen, großzügigen Fensterformaten und den hellen Backsteinen entsteht so ein Haus, dass sich modern und selbstbewusst in der Nachbarschaft platziert, sich sowohl gut in den Kontext einfügt als auch eine in der Straße markante städtische Adresse umsetzt.

PROJEKTSTATUS

FERTIG GESTELLT 2016

AUFTRAGGEBER

KURTH IMMOBILIEN GMBH
WÖHLERSTRASSE 7
37073 GÖTTINGEN

PLANUNGLEISTUNG

PLANUNG LP 1-7

PROJEKTDATEN

1 HAUS
12 WOHNUNGEN
751 M2 WOHNFLÄCHE

PROJEKTADRESSE

WÖHLERSTRASSE 7
37073 GÖTTINGEN