Bei der Clara-Wieck-Straße 8 wurde eines von insgesamt zwölf Baufeldern am südlichen Rand des Berliner Tiergartens auf der Grundlage des städtebaulichen Entwurfs zum „Diplomatenpark“ von Professor Klaus-Theo Brenner geplant. Vorgesehen war ein Ensemble aus Stadthäusern mit vier Hauptgeschossen plus Staffelgeschoss entlang einer neu geschaffenen Straße.
Das schlanke, längliche Baufeld in der Nummer 8 liegt auf der östlichen Seite der Clara-Wieck-Straße, und das Gebäude erlaubt unterschiedliche Blicke in die weitläufigen, parkähnlich angelegten Gärten.
Entwurfsziel war die Entwicklung eines modernen, in seiner Formensprache unaufdringlich eleganten Stadthauses mit großzügigen Wohnungen.
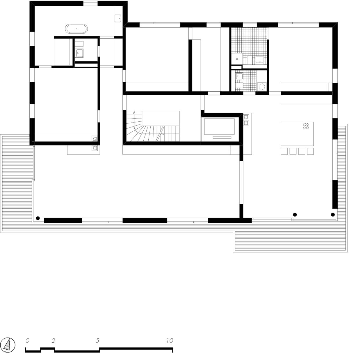
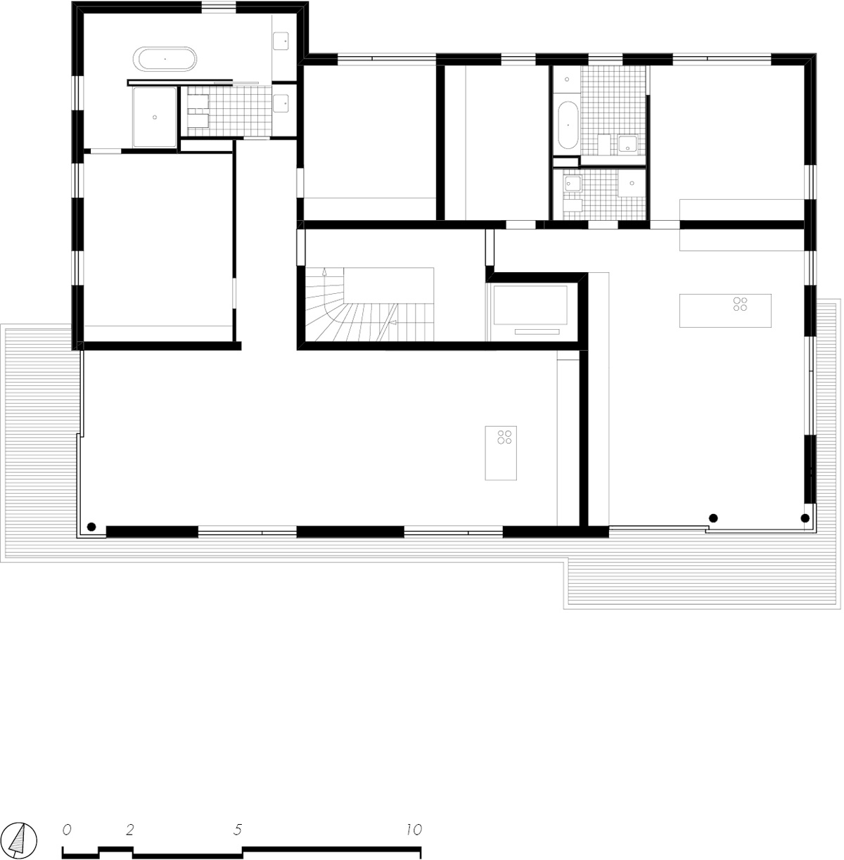
Das Treppenhaus bildet den Kern des Gebäudes, sodass in der Grundriss-Grundform mit einer Wohnung pro Geschoss eine räumlich luxuriöse Situation entsteht: Eine solche Wohnung erlaubt den Rundgang durch alle Zimmer mit Ausblick nach allen Himmelsrichtungen; hinzu kommen zwei Balkone mit Weitblick nach Südosten in Richtung Landwehrkanal und nach Westen in den privaten Garten. In den Normalgeschossen legen sich sechzig bis siebzig Quadratmeter große räumliche Einheiten ähnlich einer Windmühle um den Treppenhauskern; die nach Süden orientierten offenen Räume bilden die öffentlichen Bereiche zum Kochen, Essen und Leben, während die nach Norden orientierten privaten Räume feiner gegliedert werden.
Diese Grundstruktur erlaubt alternativ auch das Angebot zweier jeweils dreiseitig orientierter Wohnungen auf einem Geschoss.
Das Staffelgeschoss hat seine Privaträume im dritten Stock sowie eine private Dachterrasse mit Panoramablicke auf die Skyline des Potsdamer Platzes und auf der Gartenseite zur Siegessäule.
Die klar gegliederten Fassaden sind in hellem Kratzputz ausgeführt. Die beiden südlichen Ecken öffnen sich durch sehr große Verglasungen mit Schiebefenstern zu den weit auskragenden.

Projektstatus

Fertig gestellt 2012

Auftraggeber

Diamona & Harnisch Development GmbH
Leipziger Platz 14
10117 Berlin

Planungsleistung

Planung LP 1-5

Projektdaten

1 Haus
8 Wohnungen
1.298 m² Wohnfläche

Projektadresse

Clara-Wieck-Strasse 8
10785 Berlin Tiergarten

Fotos

Matthias Könsgen Fotograf