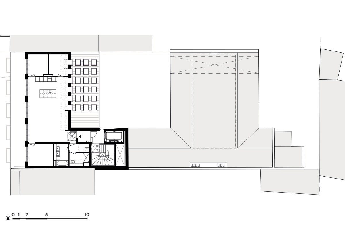
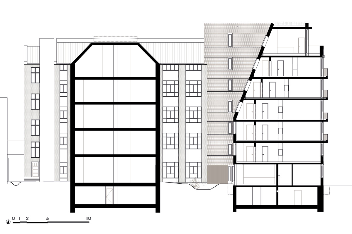
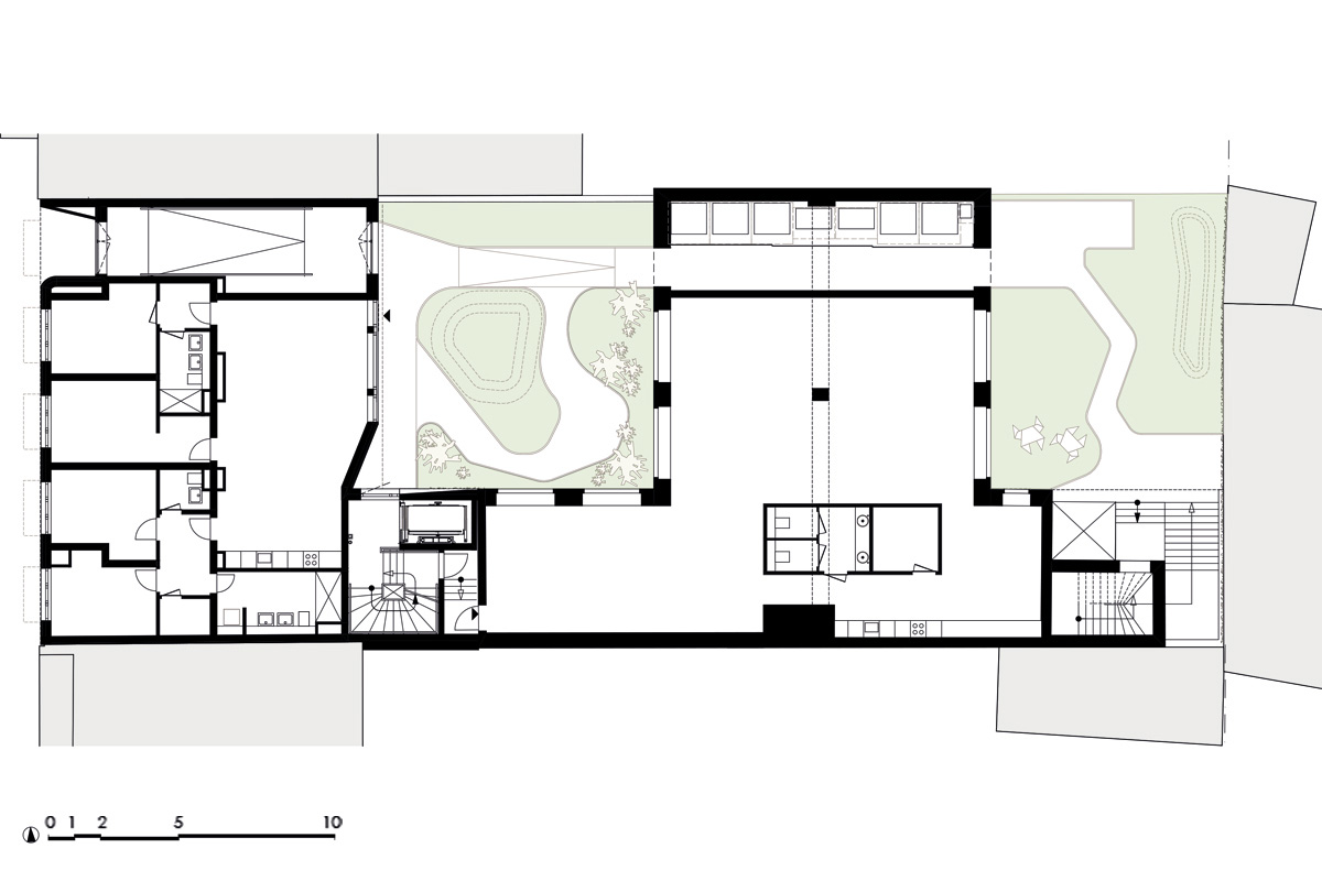
Das im Krieg zerstörte Vorderhaus soll wiedererrichtet werden, sodass die straßenbegleitenden Bebauung entlang der Möckernstraße geschlossen wird.
Die Höhe der Bebauung orientiert sich an den Traufen und Firsten der angrenzenden Nachbarn.
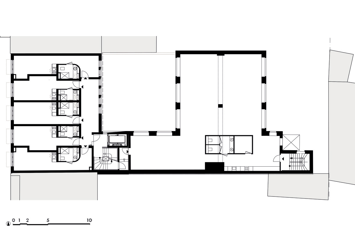
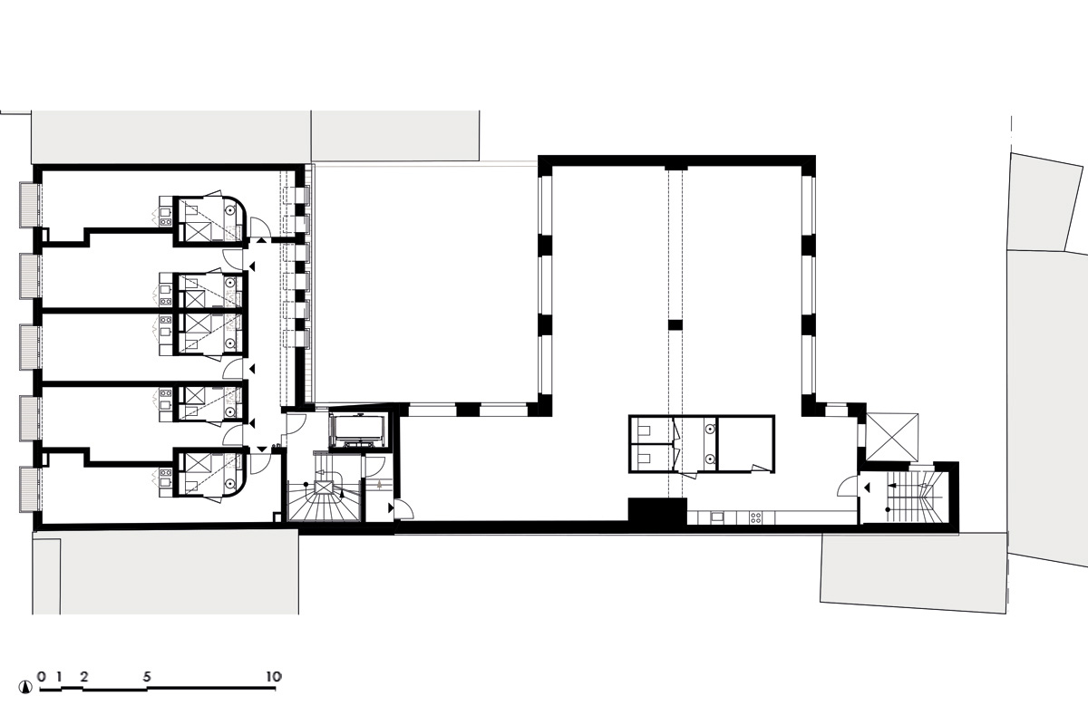
In den Normalgeschossen OG1 bis OG 5 entstehen 25 kleine Wohnungen; etagenweise je 5; die sogenannten „tiny apartments/wonderflats“. Jede Wohnung ist voll ausgestattet und dient der dauerhaften Nutzung als Wohnung.
Das EG wird gewerblich als „Ferienloft“ genutzt. Im Staffelgeschoss wird eine große 4-Zimmer Wohnung geplant
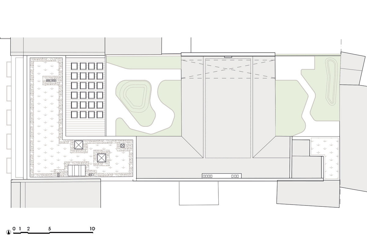
Städtebaulich im Fokus ist die Erstellung von Wohnungen mit Weitblick in den Park, die Neugestaltung einer Hof-Oase – die Gewerbeflächen im Hof verbleiben mit Weitblick in die Hoflandschaft zur Kirche.

PROJEKTSTATUS

BAUBEGINN 2023
FERTIGSTELLUNG 2025

AUFTRAGGEBER

GKM MÖCKERNSTRASSE GBR
MÖCKERNSTRASSE 111
10963 BERLIN

PLANUNGLEISTUNG

PLANUNG LP 1-8

PROJEKTDATEN

1 HAUS
26 WOHNUNGEN
1 GEWERBEEINHEIT
1.021,56 M2 WOHN- UND GEWERBEFLÄCHE

PROJEKTADRESSE

MÖCKERNSTRASSE 111
10963 BERLIN