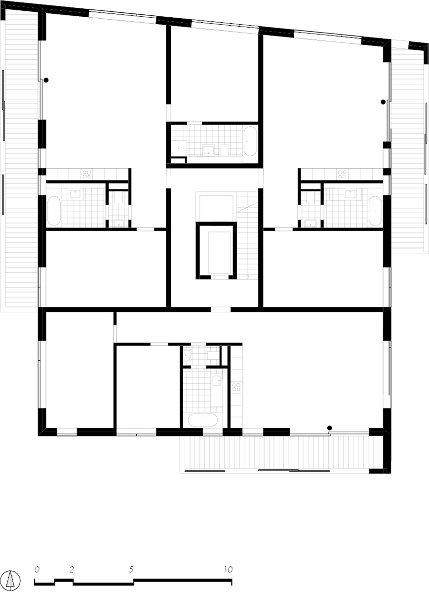
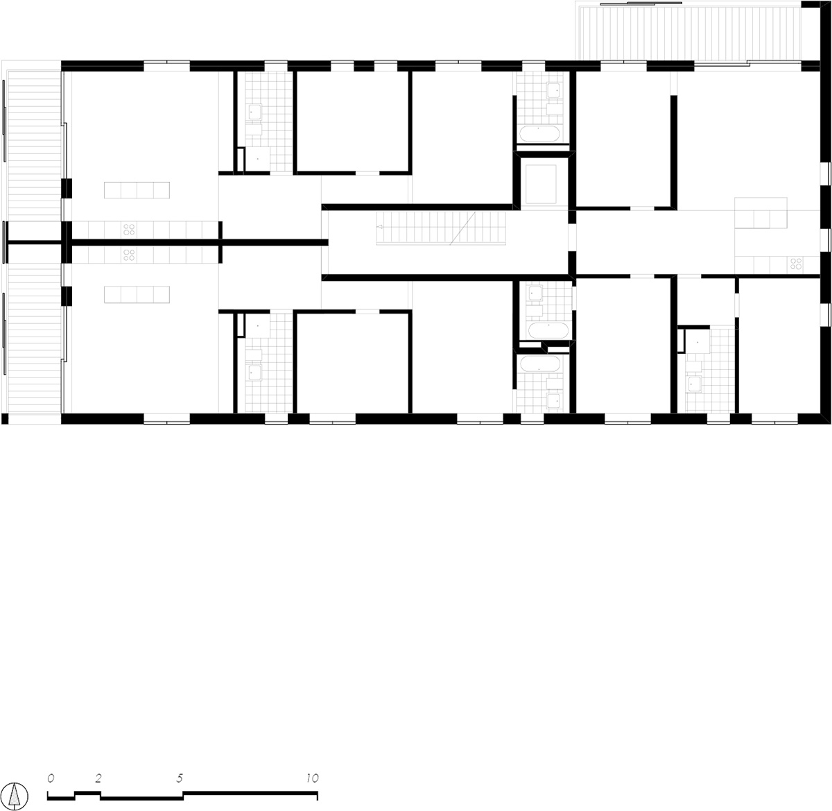
Die Entwurfsidee in der Rückertstraße war, ein Ensemble aus vier Häusern zu schaffen, die sich um einen länglichen Erschließungsgarten gruppieren. Der Erschließungsgarten zieht sich als verbindendes Element und öffentlicher Platz bis in die Tiefe des Grundstücks und ist unmittelbar mit der Straße verknüpft.
Es entsteht eine Hoflandschaft, um die sich die Häuser mit differenzierten Volumen gruppieren, und jedes der Häuser erhält eine klar erkennbare Adresse im städtischen Kontext.
Die vier Häuser sind so platziert, dass jedes Haus an seinen langen Seiten weite Blicke in den grünen Hofbereich oder zur Straße freigegeben werden. In ihrer Höhenentwicklung reagieren die Häuser auf den Bestand der näheren Umgebung.
Die Häuser bieten offene, zeitgenössische Wohnformen. Den Wohnungstypen gemeinsam sind große gemeinschaftliche Bereiche zum Kochen, Essen und Leben, die das Zentrum der Wohnung bilden, und davon getrennt kleinere, gleichwertige Räume als Privatflächen zum Arbeiten, Schlafen oder für Gäste. Die lichte Raumhöhe von drei Metern korrespondiert mit den großzügig entwickelten Grundrissen.
Bei den Materialien im Außenraum prägen die lichten, sandigen Farben des Putzes im Wechselspiel mit warmen Farbtönen der Fassadenbereiche aus Holz die Atmosphäre. Die Außenwände werden von großen Fenstern durchbrochen, sodass die Wohnräume sich mit den Gärten und Außenräumen verknüpfen.

Projektstatus

Fertig gestellt 2010

Auftraggeber

Diamona & Harnisch Development GmbH
Leipziger Platz 14
10117 Berlin

Planungsleistung

Planung LP 1-5
Aussenanlagen lp 1-4

Projektdaten

4 Häuser
42 Wohnungen
4.618 m² Wohnfläche

Projektadresse

Rückertstrasse 11
12163 Berlin Steglitz

Fotos

Matthias Könsgen Fotograf