Das Wohnhaus an der „Weißenseer Spitze“ wurde 1909 vom Architekten Andreé Wischkat geplant.
Das Haus wurde als klassisches Wohnhaus mit gewerblicher Nutzung im EG errichtet.
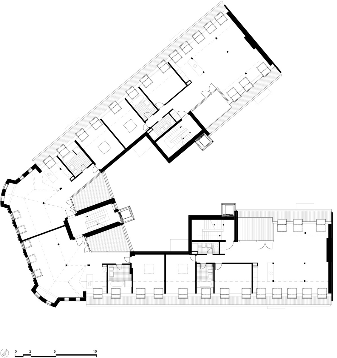
Das Haus ist am Ende der Prenzlauer Allee platziert; eine der zentralen Radialen Berlins in Verlängerung des Boulevards Unter den Linden, und befindet an der Grenze der drei Bezirke Weißensee, Pankow und Prenzlauer Berg.
Das Haus wird von Grund auf modernisiert. Der Dachstuhl wird neu errichtet und Balkone Aufzüge im Hof errichtet. Die Straßenfassade im Bestand zeigt, dass das Stadthaus in seiner architektonischen Gestaltung die städtebaulichen Anforderungen am weiträumigen Caligariplatz schlüssig umsetzt.
Die Fassade ist gegliedert in eine prägnante, stumpf ausgeführte Front mit einem die Gebäudeflügel überragenden Dach. Der Übergang zu den seitlichen Flügeln wird von Erkern artikuliert, die durch Loggien verbundenen sind; vierachsig, jeweils mit Bogenabschluss ausgebildet.
Die beiden Erker bilden – gewissermaßen als Gestaltungspaar – eine Einheit mit den unmittelbar angrenzenden Eckrisaliten, die an den beiden Gebäudeflügeln angrenzen.
Dabei entsteht eine starke und dynamischen Einheit mit der markant ablesbaren „Weißenseer Spitze“.

PROJEKTSTATUS

FERTIG GESTELLT 2015

AUFTRAGGEBER

IMMOWERT IMMOBILIENGRUPPE
LUGECK 1-2
1010 WIEN

PLANUNGLEISTUNG

PLANUNG LP 1-4

PROJEKTDATEN

1 HAUS
23 WOHNUNGEN
4 GEWERBEEINHEITEN
2.576 M2 WOHNFLÄCHE

PROJEKTADRESSE

GUSTAV-ADOLF-STRASSE 169
13086 BERLIN