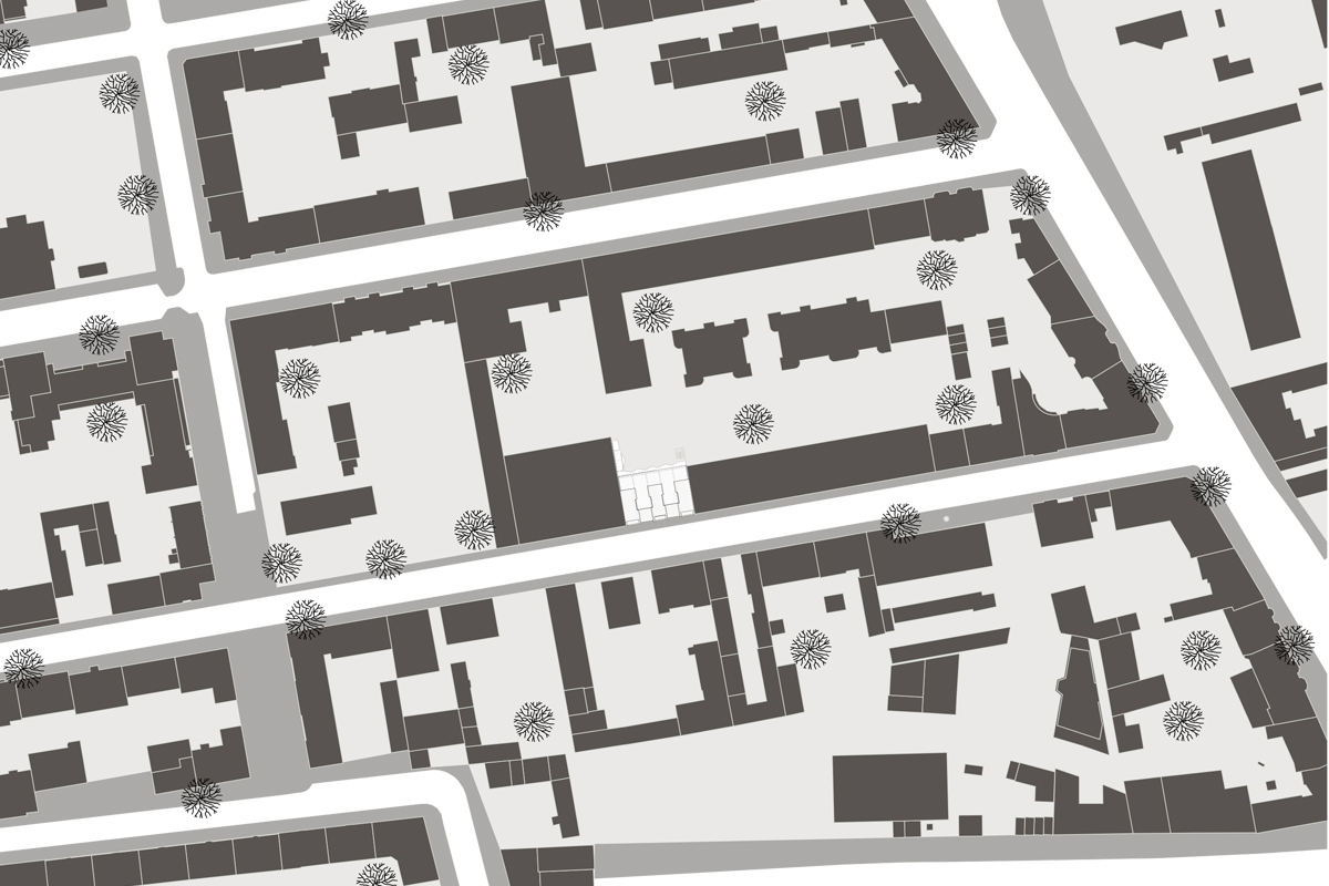
Entwurfsidee in der Juliusstraße ist eine Wohnanlage mit kompakter Vorderhausbebauung für flexibles Wohnen und kreatives Arbeiten entlang der Straße und einem atmosphärischen Obstgarten im Hof.
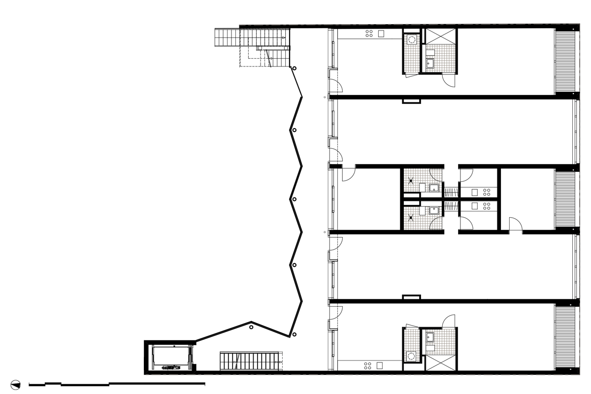
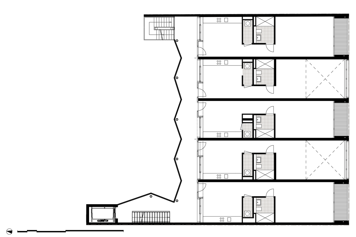
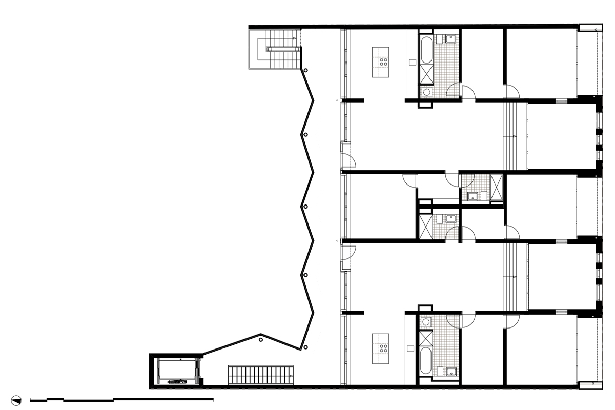
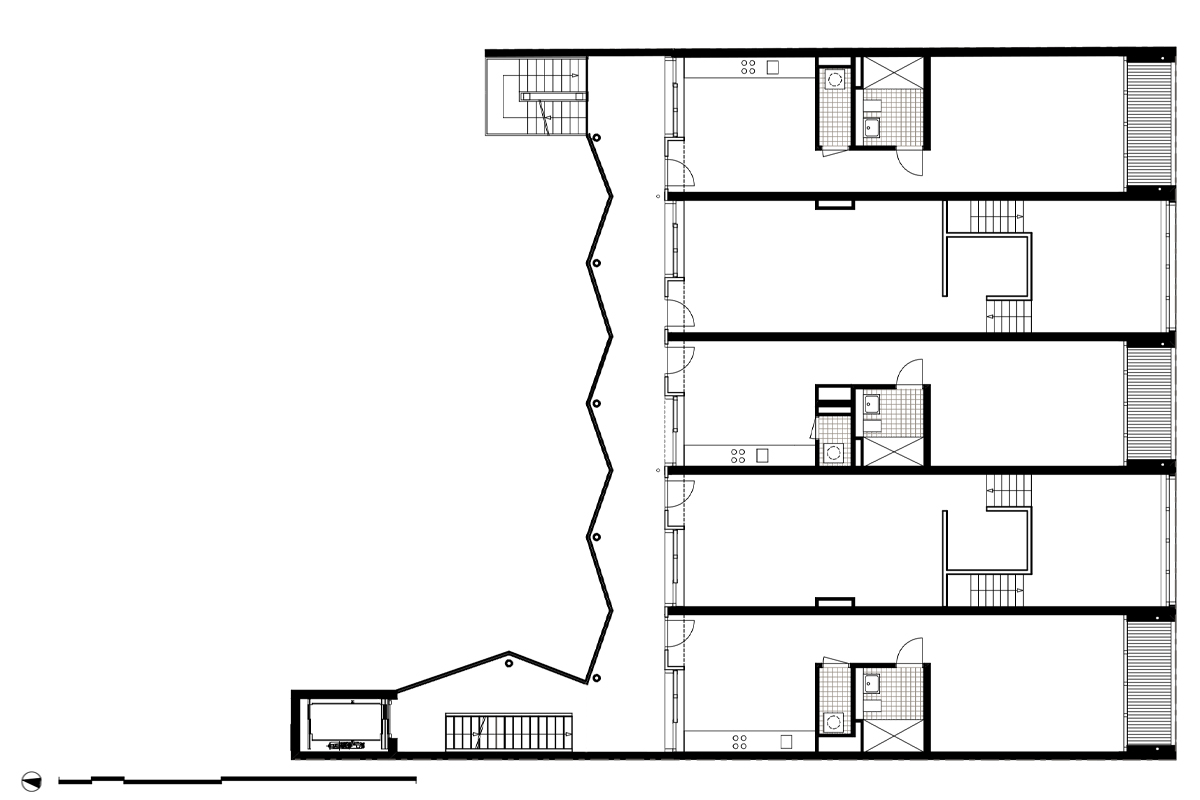
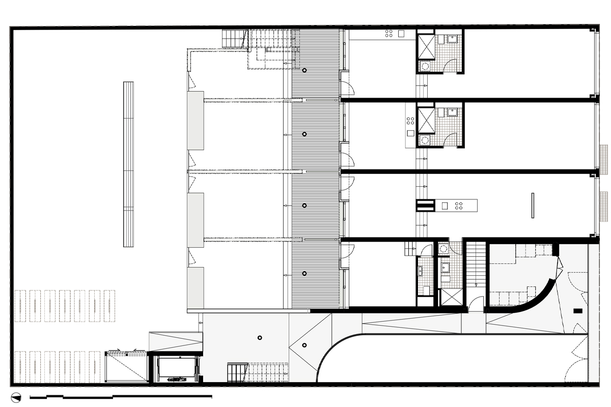
Hierbei gliedert sich das Gebäude in fünf Raumachsen, die hofseitig über einen Laubengang als „Erschließungsgarten“ zugänglich sind. Das statische System ist einfach als Schottentragstruktur gegliedert.
Damit wird es möglich, einerseits Atelierräume mit Raumhöhen in „XL“ mit lichten Höhen von bis zu 4,20m umzusetzen, ohne dass ein innenliegendes Treppenhaus „im Weg steht“.
Und andererseits erhalten so zahlreiche Wohnungen „durchgesteckte“, flexibel nutzbare Haupträume.
Den klassischen Laubengang haben wir in einen „Erschließungsgarten“ verwandelt, der einerseits durch die gezackte Form intimere Flächen zur privaten Nutzung und „Bepflanzung“ liefert und andererseits durch die eichenfarben lasierten Oberflächen eine warme und angenehme Atmosphäre schafft.
Anstelle des klassischen Entrees mit Nebenräumen „Flur/WC/Kochnische“ öffnet sich in der Julius 9 ein „großes Zimmer“ zum Eintreten mit Essplatz und Küche – hierbei sind die Fenster so gestaltet, dass die tiefe Brüstung in Fortsetzung der Küchenzeile wie ein Tresen zum „Erschließungsgarten“ genutzt werden kann, sodass hier ein Kommunikationsraum Innen/Außen mit verschiedensten Nutzungsszenarien entstehen kann.
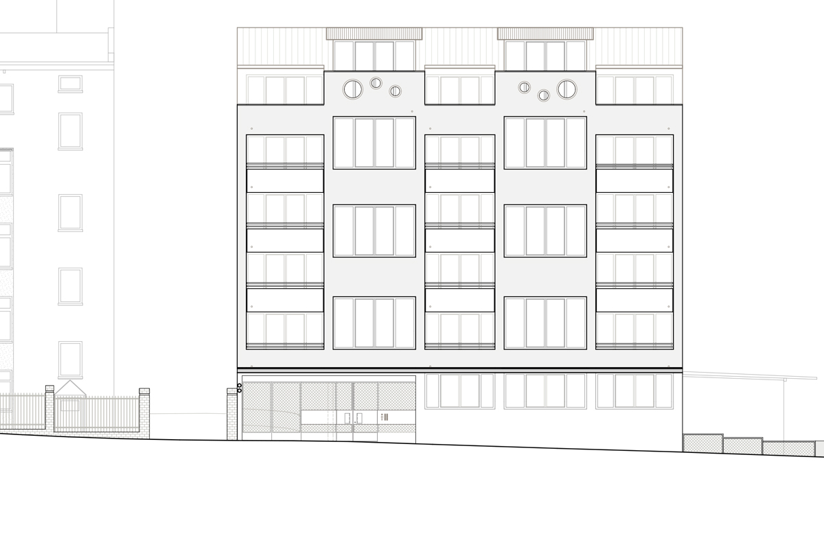
Ein solider, robuster und farbiger Betonsockel im Hochparterre entlang der Straße trägt dazu bei, eine starke, städtische Adresse zu bilden und begleitet orientierend die Erschließung durch das Haus; vom farbigen Sockel und Zugangstor über das farbige Geländer bis hin zur Deckengestaltung des Erschließungsgartens;
Die Hauptgeschosse sind gegliedert von Wohnungsloggien und hohen Atelierfenstern – mit Kratzputz entlang der Fassade, Glattputz in den Loggien und farblich auf den Sockel abgestimmten Markisen und Brüstungsholmen.

PROJEKTSTATUS

BAUBEGINN 2023
FERTIGSTELLUNG 2025

AUFTRAGGEBER

FOURREAL GMBH
BAUERNMARKT 10/14
1010 WIEN

PLANUNGLEISTUNG

PLANUNG LP 1-4

PROJEKTDATEN

1 WOHN- UND ATELIERHAUS
18 WOHNUNGEN
5 ATELIERS
1.695 M2 WOHNFLÄCHE

PROJEKTADRESSE

JULIUSSTRASSE 9
12051 BERLIN