Für die Oranienburger Straße 9-10 in Berlin-Mitte wurde ein eingeladener Wettbewerb für ein Stadthaus mit Läden, Büros und Wohnungen ausgelobt.
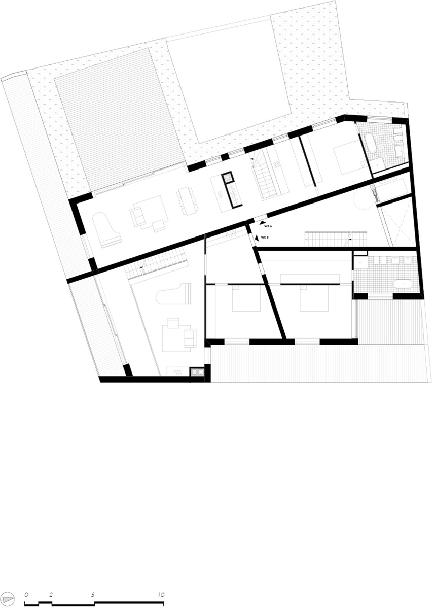
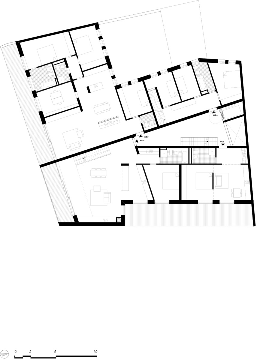
Vorgabe war der Entwurf eines Wohn- und Geschäftshauses auf sechs Etagen mit jeweils zwei Ebenen für den Einzelhandel, Büros und zum Wohnen. Das Grundstück an der Ecke zur Großen Hamburger Straße in der Spandauer Vorstadt in fußläufiger Entfernung zu Museumsinsel, Neuer Synagoge und Postfuhramt bot weite Blicke bis hin zum weiter westlich an der Oranienburger Straße gelegenen Monbijoupark.
Unser Beitrag erhielt im Wettbewerb den 1. Preis und sucht eine in Maßstab und Materialität zeitgenössische Übersetzung großstädtischer Architektur, die den ausgelobten verschiedenen Nutzungsansprüchen Rechnung tragen, ohne in Einzelteile zur zerfallen.
Die knapp sieben Meter hohen Schaufenster mit Bezug zur Oranienburger Straße, die großzügigen Bürofenster und das an der oberen Gebäudeecke platzierte zweigeschossige „Wohnschaufenster“ bilden die Prämissen für den Ausdruck des Hauses.
Die Materialität der Fassade wurde konzipiert als helle, fast porzellanartige Steinfassade. Die mehrschichtig gegliederte Wandkonstruktion wurde aus vorgemauerten, großteiligen Fassadensteinen aus gestocktem Weißzementbeton geplant. Die Fenster wurden im Kontrast in tiefschwarzem Aluminium mit verchromten Glasklemmleisten entworfen. Die gestockte Fassade übernimmt dabei klassische Handwerkstraditionen und moderne Steinkonstruktionen und formuliert gemeinsam mit den Aluminium-Chromfenstern den eleganten und klassischen Anspruch des Entwurfs, der in der Detailwahrnehmung mit den gewählten Oberflächen haptisch wahrgenommen wird.

Projektstatus

Nicht realisiert
Fertigstellung 2015
Nach Umplanung und Nutzungsänderung in ein Boardinghouse

Auftraggeber

IPG Immobilienprojekt GmbH
Ohmstrasse 18
80802 München

Planungsleistung

Geladener Wettberwerb 2011 – 1. Preis

Projektdaten

1 Haus
2 Einzehandelsflächen
3 Gewerbeflächen
4 Wohnungen
2.490 m² Nutzfläche

Projektadresse

Oranienburger Strasse 9-10
10178 Berlin Mitte

3d Visualisierung

Archlab