Unsere Entwurfsidee für die beiden Neubauten im Hof interpretiert morphologischen und funktionalen Bausteine der näheren Umgebung zu einem neuen Hofensemble.
Ziel für uns war es, die enge und für uns positive Verflechtung von Wohnen und Arbeiten zu entwickeln und überdies eng mit den Gartenräumen zu verknüpfen. Wir lesen den Hofraum sinnbildlich als eine zeitgenössische Verknüpfung von Wohnen, Arbeiten und Freizeit.
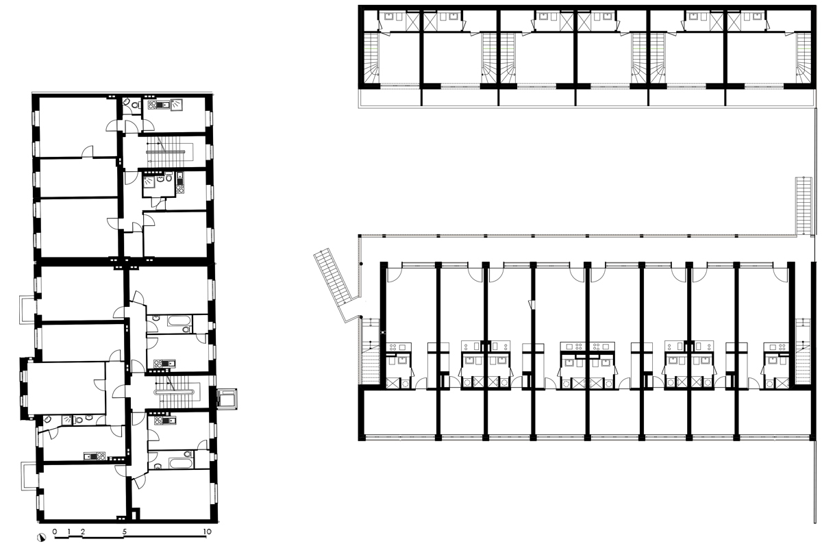
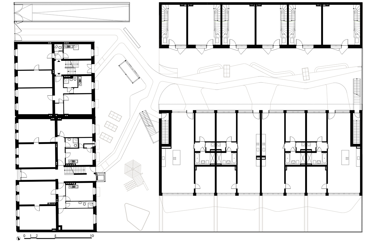
Platziert haben wir hierfür in enger Abstimmung mit Stadtplanung und Stadtentwicklung ein dreigeschossiges Wohnhaus und ein zweigeschossiges Atelierhaus. Das Wohnhaus ist als Doppelremise lesbar; hier etwa mittig auf dem zusammengelegten Grundstück platziert – östlich gegenüber liegt grenzständig das gewerblich genutzte zweigeschossige Atelierhaus.
So fügen sich zwei langgestreckte Häuser in die typische Struktur des Blockinnenbereichs.
Die einzelnen Atelierräume könnten von kleinen Gewerbebetrieben genutzt werden; so wären vorstellbar in von uns durchgespielten Szenarien für Nutzungen als Polstereiwerkstatt, Yoga-Studio, Grafikbüro, Künstlerwerkstatt, genutztes „Homeoffice“ und viele gewerbliche Nutzungen mehr.
Das Wohnhaus liefert auf drei Ebenen jeweils verschiedene Angebote für zahlreiche Zielgruppen.
Im EG finden sich barrierefrei nutzbare Familienwohnungen mit Terrassenanschluss, darüber Zwei-Zimmerwohnungen an einem mit Holz ausgeschlagenen Erschließungsgang, der auch temporär als Außenraum nutzbar ist und junge wie ältere Menschen gleichermaßen adressiert.
Im letzten Obergeschoss haben wir zur Westseite eine hölzerne Pergola entworfen, die den Erschließungsgang und die dort angrenzende Terrasse überdacht; hier finden sich wieder Familienwohnungen mit drei Zimmern.
In diesem neuen Ensemble zwischen erweiterter historischer Bebauung entstehen drei unterschiedlich gestaltete Gartenräume; hier konkret der „Gemeinschaftsgarten“, der „Aktive Hof“ und der „private Garten“. Der „Gemeinschaftsgarten“ zwischen den Vorderhäusern und Hofhäusern bietet Flächen für kids und grownups zum Spielen, Gärtnern und Verweilen mit Tischtennis, Seilrutsche, Sandkasten etc.
Der „Aktive Hof“ liegt zwischen flexiblem Wohnhaus und kreativem Atelierhaus; dort sind Vorgärten und außenliegende Atelierbereiche platziert, ergänzt durch hölzerne Bänke und kleinen Gewächshäusern zum gemeinschaftlichen „urban gardening“.

PROJEKTSTATUS

BAUBEGINN 2023
FERTIGSTELLUNG 2025

AUFTRAGGEBER

FOURREAL GMBH
BAUERNMARKT 10/14
1010 WIEN

PLANUNGLEISTUNG

PLANUNG LP 1-4

PROJEKTDATEN

1 WOHNHAUS, 1 ATELIERHAUS, DG-UMBAU
19 WOHNUNGEN
6 ATELIERS
1.813 M2 WOHNFLÄCHE

PROJEKTADRESSE

PISTORIUSSTRASSE 91-92
13086 BERLIN