Entwurfsidee in der Mühlenstraße war es, eine Wohnanlage zu entwerfen, die Qualitäten des typischen Berliner Blocks mit öffentlichen Räumen entlang städtischer Parzellen mit den Vorzügen der Vorstadt wie offenen Gartenlandschaften und Parks verknüpft.
Städtebaulich schließt das Haus den Straßenraum zur nördlich angrenzenden parzellierten Blockstruktur, während sich die Südseite des Gebäudes aufschließt zum Garten und zum Landschaftsraum der benachbarten offenen Bebauung aus den späten 1950er Jahren.
Unsere städtebauliche Analyse für die Mühlenstraße fokussiert die Themen Stadtraum und Landschaft.
Innerhalb des vorgefundenen vorstädtischen Kontextes finden sich neben der dispersen direkten Nachbarschaft und in direkter Nähe prägende Stadträume. Nah dran sind der Florakiez in Pankow und der nördliche Prenzlauer Berg mit „Kiezatmosphäre“ der belebten Straßenräumen des parzellierten Berliner Blocks. Stadträumlich prägend sind in unmittelbarer Nachbarschaft ebenfalls die zahlreichen Reformwohnungsbauten mit weitläufigen großen Hofgärten aus dem frühen zwanzigsten Jahrhundert, sowie die zahlreichen Zeilenbauten und „Platten“ aus der Mitte bis in die achtziger Jahre des zwanzigsten Jahrhunderts mit ihren offenen, stadtlandschaftlichen Gärten.
Innerhalb dieser verschiedenen Stadträume und Bautypologien finden wir zahlreiche Landschaftsräume wie Parkanlagen, Sportplätze, Freibad, Kleingartensiedlungen und Stadtplätze, die mit zahlreichen Wegen und Pfaden verknüpft sind bis hin zu aufwändig geplanten Strecken wie den Panke Radweg und den Radfernweg Berlin-Usedom.
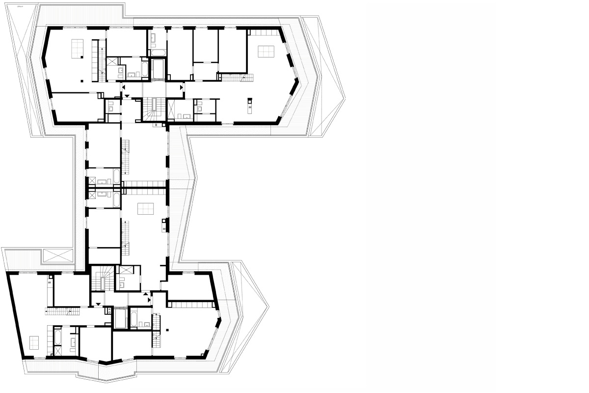
Unser Baukörper knüpft mit seinem kompakten, doppel-T-förmigen Grundriss an städtische Typologien aus der Gründerzeit an. Wo aber in der Gründerzeit an allen den Enden des „T’s“ die eigenen geschlossenen Brandwände an neue Nachbarparzellen anschließen, öffnen sich unsere „T“-Enden in die Gartenlandschaft mit bis zu über drei Meter tiefen Veranden, die als überdachte Terrasse großzügigen und geschützten Aufenthalt zwischen Wohnraum und Hofgarten bieten.
Der Zugang zu den beiden Treppenhäusern erfolgt zum Vorderhaus an der Straße unmittelbar durch einen großzügigen Vorgarten und im Hof durch den weitläufigen Garten.
Das Haus bietet offene, zeitgenössische Wohnformen. Den Wohnungstypen gemeinsam sind gemeinschaftliche Bereiche zum Kochen, Essen und Leben, die das Zentrum der Wohnung bilden und sich unmittelbar zur Veranda als überdachten „privaten Garten“ orientieren und öffnen.
Auf der anderen Seite und davon getrennt liegen kleinere, gleichwertige Räume als Privatflächen zum Arbeiten, Schlafen oder für Gäste.
Die lichte Raumhöhe von über 2,85 Metern, die bodentiefen Fenster und die großzügig entwickelten Grundrisse mit den üppigen Terrassen vermitteln unaufgeregten und angenehmen Wohnkomfort.
Bei den Fassadenmaterialien steht die klassische Gliederung der horizontal geschichteten Fassade mit seinen Gesimsen in Beton nature und den lichten Farben des Kammputzes im Wechselspiel mit den lasierten Holzfenstern „nature“ und den expressiven bauchigen Stützen und Balkongeländern der Veranda, die sich als privater Garten der Wohnräume mit den Hofgärten und Außenräumen verknüpfen.

PROJEKTSTATUS

BAUBEGINN 2020
FERTIGSTELLUNG 2022

AUFTRAGGEBER

D.I.I. …
DEUTSCHE INVEST IMMOBILIEN GMBH
BIEBRICHER ALLEE 2
65187 WIESBADEN

PLANUNGLEISTUNG

PLANUNG LP 1-5

PROJEKTDATEN

1 HÄUSER
51 WOHNUNGEN
4.568 M2 WOHNFLÄCHE

PROJEKTADRESSE

MÜHLENSTRASSE 60-61
13187 BERLIN PANKOW

RENDERINGS

GEORG HANA VISUALISIERUNG