Die Entwurfsidee am Weichselplatz war es, ein Hofhaus zu entwerfen, das die klassische, gründerzeitliche Typologie weiterentwickelt und komplettiert.
Und ergänzend die Qualitäten der westlich angrenzenden Hoflandschaft mit Weitblick sowie den neu angelegten Hofgarten als Oase für die unterschiedlichen Wohnungsangebote erlebbar gestaltet.
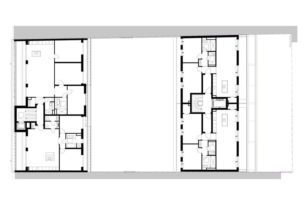
Ergänzend platzieren wir auf dem Vorderhaus aus den 1960iger Jahren ein Staffelgeschoss für zwei Wohnungen mit Weitblick über das Kanaldreieck zwischen Neukölln, Kreuzberg und Treptow.
So entsteht unser „städtebaulicher Titel“ Weitblick-Oase-Weitblick; kurz WOW.
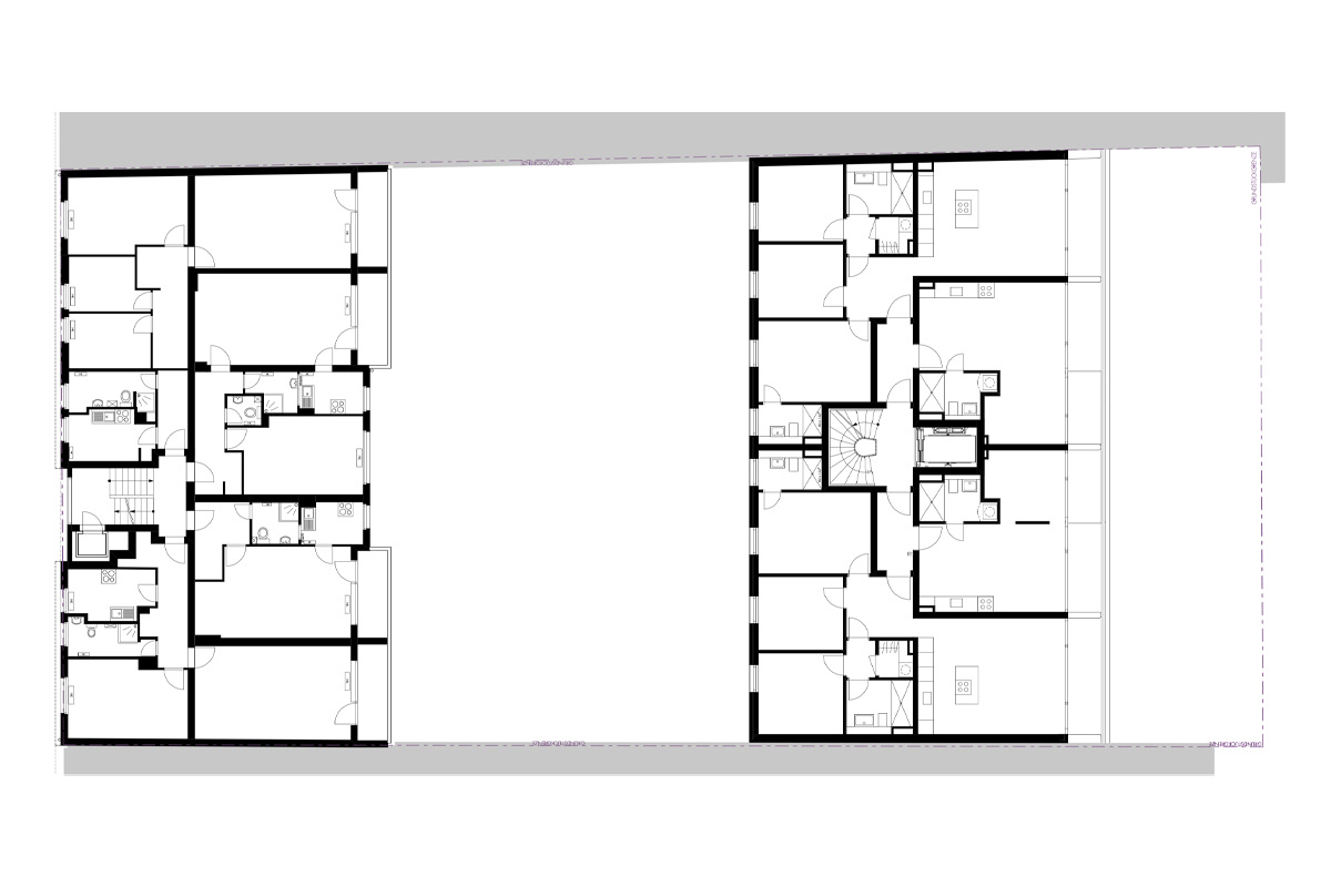
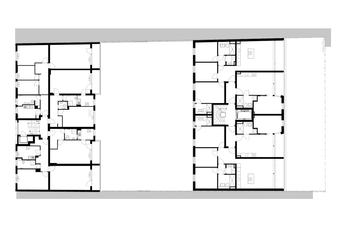
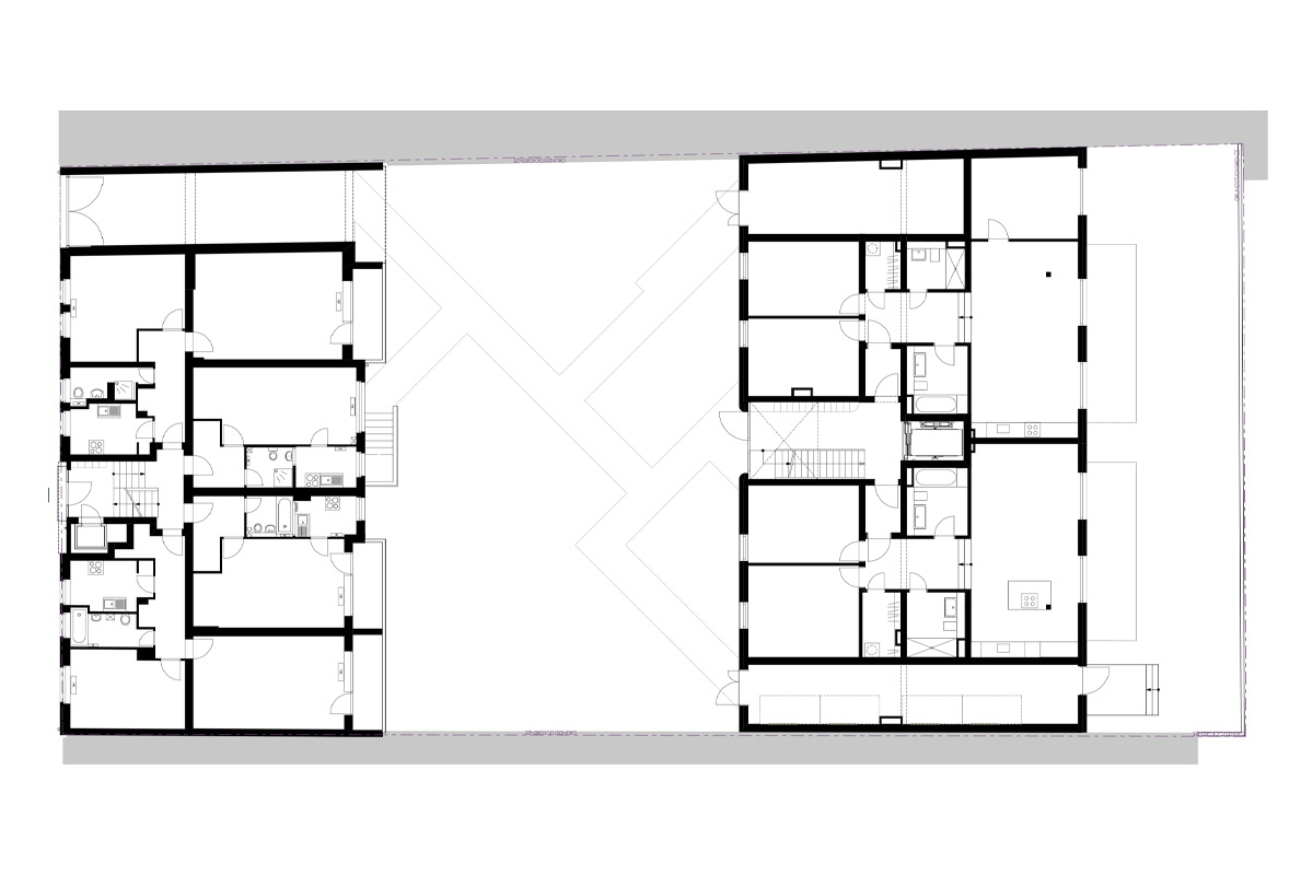
Insgesamt entstehen 26 neue Wohnungen, die mit Ihren unterschiedlichen Angeboten gut verschiedene Zielgruppen in Neukölln adressieren, die wir mit der Beschreibung von Personas in unserer Broschüre vorgestellt haben. Alle Wohnungen erhalten großzügige Balkone mit Weitblick nach Südwesten in den langgestreckten Hof – die beiden Wohnungen auf dem Bestandsgebäude sind wegen des besonderen Weitblicks aufs Wasser nach Nordosten ausgerichtet.
Alle Fenster im Hofgebäude zum Hof nach Südwesten öffnen sich bodentief und raumhoch zum Hof nach Südwesten. Zum angelegten gemeinsamen Hof wird eine Lochfassade mit niedrigen Brüstungen umgesetzt.
Der Sockel des Gebäudes wird mit Keramikriemchen verkleidet werden, alle Fassaden der Normalgeschosse werden im Wärmedämmverbundsystem mineralisch japanweiß verputzt.

PROJEKTSTATUS

BAUBEGINN 2025
FERTIGSTELLUNG 2027

AUFTRAGGEBER

FOURREAL GMBH
BAUERNMARKT 10/14
1010 WIEN

PLANUNGLEISTUNG

PLANUNG LP 1-4

PROJEKTDATEN

1 WOHNHAUS, DG-UMBAU
26 NEUE WOHNUNGEN
1.979,22 M2 NEUE WOHNFLÄCHE

PROJEKTADRESSE

WEICHSELPLATZ 7
12045 BERLIN